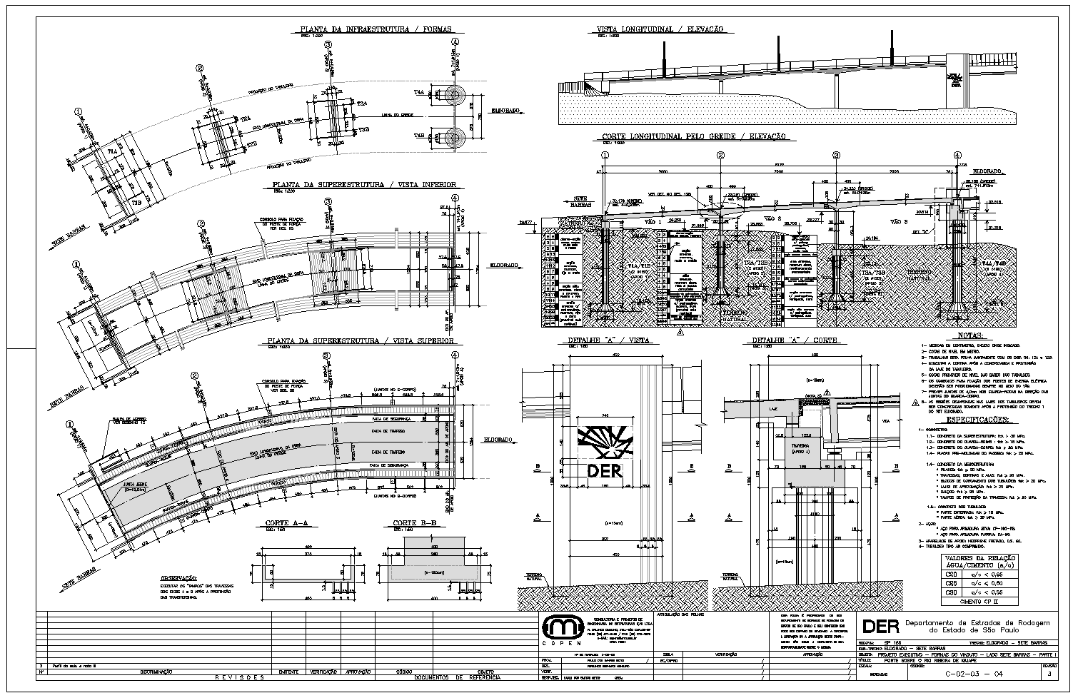
Projeto Executivo da Ponte sobre o rio Ribeira de Iguape, rodovia SP 165, ligação das cidades de Eldorado e Sete Barras.
A obra tem comprimento total de 360m e largura do tabuleiro de 12,64m, encerrando área de 4550m2.
O trecho sobre o rio possui cinco tramos em tabuleiros de 40m de vão, constituídos de vigas pré-moldadas protendidas.
A montagem das vigas foi efetuada com treliça lançadeira do tipo Sicet.
Os trechos extremos são viadutos de acesso, constituídos de tramos contínuos curvos de laje protendida.
Projeto Básico da Interligação Viária Sumaré-Hortolândia (2 Viadutos) em Sumaré/SP.
Projetos Executivos de duas Pontes no contorno norte de Porto Velho/RO.
Projeto Executivo de Viaduto de acesso ao Parque das Bandeiras Shopping, na Av. Jonh Boyd Dunlop em Campinas/SP.
Projeto Executivo da Passarela para pedestres sobre a Av. Presidente Castelo Branco (SP-307/330) em Ribeirão Preto/SP.
Projeto Executivo de Viaduto sobre a SP 008, KM 137+500m em Socorro/SP.
Projeto Executivo de Passagem Inferior (falso túnel) na SP 360, km 67+000m.
Projeto Executivo de Passagem Superior no Rodoanel Mario Covas, obra 304 do trecho Sul.
Projeto Executivo de Ponte no Rodoanel Mario Covas, obra 103 do trecho Sul.
Projeto Executivo da Canalização do Ribeirão do Sul em Sertãozinho/SP.
Projeto de Reforço e Alargamento da Ponte sobre o rio Jacaré Pepira na SP 225, km 142+000m.
Projeto Executivo de Viaduto na Avenida Agostinho Prada em Limeira/SP.
Projeto de Recuperação e Reforço da Superestrutura da Ponte sobre o rio Pardo em Santa Rosa de Viterbo/SP.
Projetos Executivos do Complexo Viário na Avenida Aricanduva/SP.
Projeto Executivo de Viaduto no cruzamento entre a Av. Major Nicácio e Ismael Alonso y Alonso em Franca/SP.
Projeto Executivo de Viaduto na Serra de Rifaina, estaca 70+10,0m da SP334.
Projeto Executivo da Ponte sobre o rio Itiquira, ligação ferroviária Alto Araguaia - Rondonópolis.
Projeto de Recuperação e Alargamento da Ponte sobre o rio Paraía do Sul em Cachoeira Paulista/SP.
Projeto Executivo da Ponte sobre o rio Piraí (centro), ligação da Av. Osvaldo Cruz com a rua Gabriel Vilela Sobrinho, em Barra do Piraí/RJ.
Projeto de Recuperação e Reforço da mesoestrutura da Ponte sobre o rio Taquari, represa Jurumirim na SP 270, km 295+300m.
Rua Dr. Orlando Damiano, 2194 - Centro - São Carlos/SP - Fone: (16) 3371-9403 / 3372-4905 - copem@copemengenharia.com.br
